פרסומת עיריית נתניה
 תוכנית המלונות בפולג שבה לדיון וצפויה להקשות על מבוגרים תוכנית המלונות בפולג

הוועדה לשמירת הסביבה החופית במינהל תכנון קיימה דיון על הכיכר המרכזית והממשק עם המסדרון האקולוגי. ריקה אידלמן, נציגת ציבור בוועדת איכות הסביבה וחברת קרן נתניה הירוקה: "תוכנית גרועה. הנגישות לחוף תהיה רק לצעירים שאין להם בעיה לרוץ מסע כומתה" 

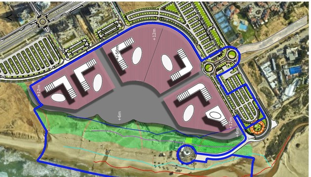
הוועדה לשמירת הסביבה החופית במינהל תכנון (ולחוף), קיימה ביום רביעי השבוע דיון נוסף בתוכנית המלונות שנמשך כשלוש שעות וגרר לא מעט ויכוחים, כאשר הפעם הנושא היה הכיכר המרכזית הסמוכה לחוף פולג והממשק עם המסדרון האקולוגי. הדבר הציף פעם נוספת את הקושי הגדול בכל הנוגע לנגישות לחוף עבור מבוגרים ומשפחות עם ילדים וציוד רב.

"בכל פעם הוועדה לוקחת נקודה בחוף ונכנסת לפרטים ספציפיים הנוגעים לתוכנית המלונות, כמו כמה צל יהיה על הכיכר, האם יהיה שביל אופניים ועוד פרטים טכניים, אבל בסופו של דבר מדובר בתוכנית גרועה שאינה עבור התושבים", אומרת ריקה אידלמן, נציגת ציבור בוועדת איכות הסביבה וחברת קרן נתניה הירוקה. "אין כל התייחסות לצרכים של אנשים מבוגרים ומשפחות עם ילדים והרבה ציוד, וההגעה שלהם לחוף פולג תהיה הרבה יותר קשה".

עוד הוסיפה אידלמן כי המשמעות היא ביטול החנייה הקטנה של הנכים בחניון הדרומי והכפלת אורך שביל הגישה המונגשת למסעדה משום שכרגע השביל תלול מדי. אם לא די בכך, אחוז הצל בכיכר המרכזית צפוי להיות קטן במיוחד.

"לטבע במרחב הציבורי יש ערך חשוב מאוד לבריאות האנשים, אבל מה שיקרה הוא שישפכו מיליוני שקלים כדי לייצר במה ענקית של כ-50 דונם בטון על שטח טבעי שיכול היה להיות פארק יפהפה שמחבר בין שמורת האירוסים לשמורת נחל פולג", היא מסכמת. "מוחקים את החיבור הטבעי הזה בהחלטה אחת, ובסופו של דבר הנגישות בחוף תהיה רק לצעירים חזקים וחטובים עם קוביות בבטן, שאין להם בעיה לרוץ 'מסע כומתה' מסוג כזה. אני מצפה שלהנהגה החדשה של העיר יהיה את האומץ להודות שהתוכנית הזו הייתה טובה אולי לפני 30 שנה, אבל ממש לא מתאימה לעכשיו, ולעצור אותה".